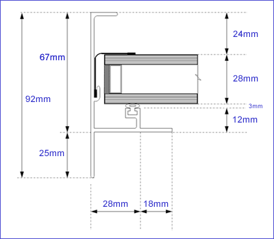
Aluminium extrusion with lead wing rolled into the profile. The LW Range is an unsupported glazing bar, without capping, which doesn’t need to be supported by timber supports, giving a traditional look.
Aluminium extrusion with lead wing rolled into the profile. The LW Range is an unsupported glazing bar, without capping, which doesn’t need to be supported by timber supports, giving a traditional look.