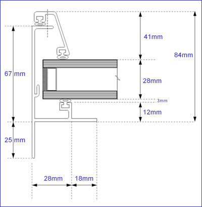
Aluminium extrusion with continuous pressure cap. The CB Range is an unsupported glazing bar and capping, which doesn’t need to be supported by timber supports, giving a contemporary look.
Aluminium extrusion with continuous pressure cap. The CB Range is an unsupported glazing bar and capping, which doesn’t need to be supported by timber supports, giving a contemporary look.